NỒI HƠI ĐỐT ĐA NHIÊN LIỆU

NỒI HƠI ĐỐT ĐA NHIÊN LIỆU

hơi đốt đa nhiên liệu được thiết kế chế tạo có thể tích buồng đốt lớn, diện tích mặt ghi rộng nên đáp ứng và phù hợp với việc đốt than, củi. củi trấu, mùn cưa ép Việc cung cấp ôxy tốt, quá trình cháy nhiên liệu tốt làm cho nhiên liệu cháy tốt hơn và triệt để hơn
  • Lò hơi đốt đa nhiên liệu được thiết kế chế tạo là dạng lò nằm, tổ hợp ống nước, ống lửa, buồng đốt phụ, có 03 pass dẫn khói nóng nên hiệu suất truyền nhiệt của lò cao, nhiệt độ khói thải thấp, mức độ hấp thụ nhiệt của lò hơi rất tốt. Ngoài ra đường khói pass 3 của lò được qua các hộp đọng tro bụi nên đường khói thoáng, việc vệ sinh tro bụi rất dễ dàng. Các ống nước và ống lửa được vệ sinh sửa chữa thay thế một cách thuận tiện. hệ thống sấy không khí và hệ thống hâm nước được bố trí ngay sau đường khói ra của lò giúp tăng hiệu suất của lò giảm chi nhiên liệu
  •  Lò hơi đốt đa nhiên liệu được chế tạo trên dây chuyền  máy hiện đại của Mỹ, Italia . . . được kiểm soát  chặt  chẽ  bởi  hệ  thống  quản  lý  chất  lượng  theo  tiêu  chuẩn  ISO  9001:2000  (vương quốc Anh cấp)

      -    Lò hơi được chế tạo đảm bảo qui phạm an toàn lò hơi và các thiết bị chịu áp lực của nhà nước hiện hành. Các mối hàn bằng que hàn chịu áp lực E7018,  do  thợ  hàn  có  bằng  hàn  áp  lực  hàn.  Các  mối  hàn  được  kiểm  tra  bằng  siêu  âm 100% các mối hàn giáp mép và sau đó được kiểm tra bằng thử lạnh áp lực nước
    hơi đốt đa nhiên liệu được thiết kế chế tạo có thể tích buồng đốt lớn, diện tích mặt ghi rộng nên đáp ứng và phù hợp với việc đốt than, củi. củi trấu, mùn cưa ép Việc cung cấp ôxy tốt, quá trình cháy nhiên liệu tốt làm cho nhiên liệu cháy tốt hơn và triệt để hơn

  • Lò hơi đốt đa nhiên liệu được thiết kế chế tạo là dạng lò nằm, tổ hợp ống nước, ống lửa, buồng đốt phụ, có 03 pass dẫn khói nóng nên hiệu suất truyền nhiệt của lò cao, nhiệt độ khói thải thấp, mức độ hấp thụ nhiệt của lò hơi rất tốt. Ngoài ra đường khói pass 3 của lò được qua các hộp đọng tro bụi nên đường khói thoáng, việc vệ sinh tro bụi rất dễ dàng. Các ống nước và ống lửa được vệ sinh sửa chữa thay thế một cách thuận tiện. hệ thống sấy không khí và hệ thống hâm nước được bố trí ngay sau đường khói ra của lò giúp tăng hiệu suất của lò giảm chi nhiên liệu

-    Toàn bộ thiết bị của hệ thống được nhập ngoại từ nước ngoài, với các tính năng hiện đại đang được được sử dụng phổ biến trên thị trường giúp người vận hành dể dàng theo dõi cũng như điều chỉnh lò tốt hơn


THÔNG SỐ KỸ THUẬT VÀ CHẾ ĐỘ VẬN HÀN
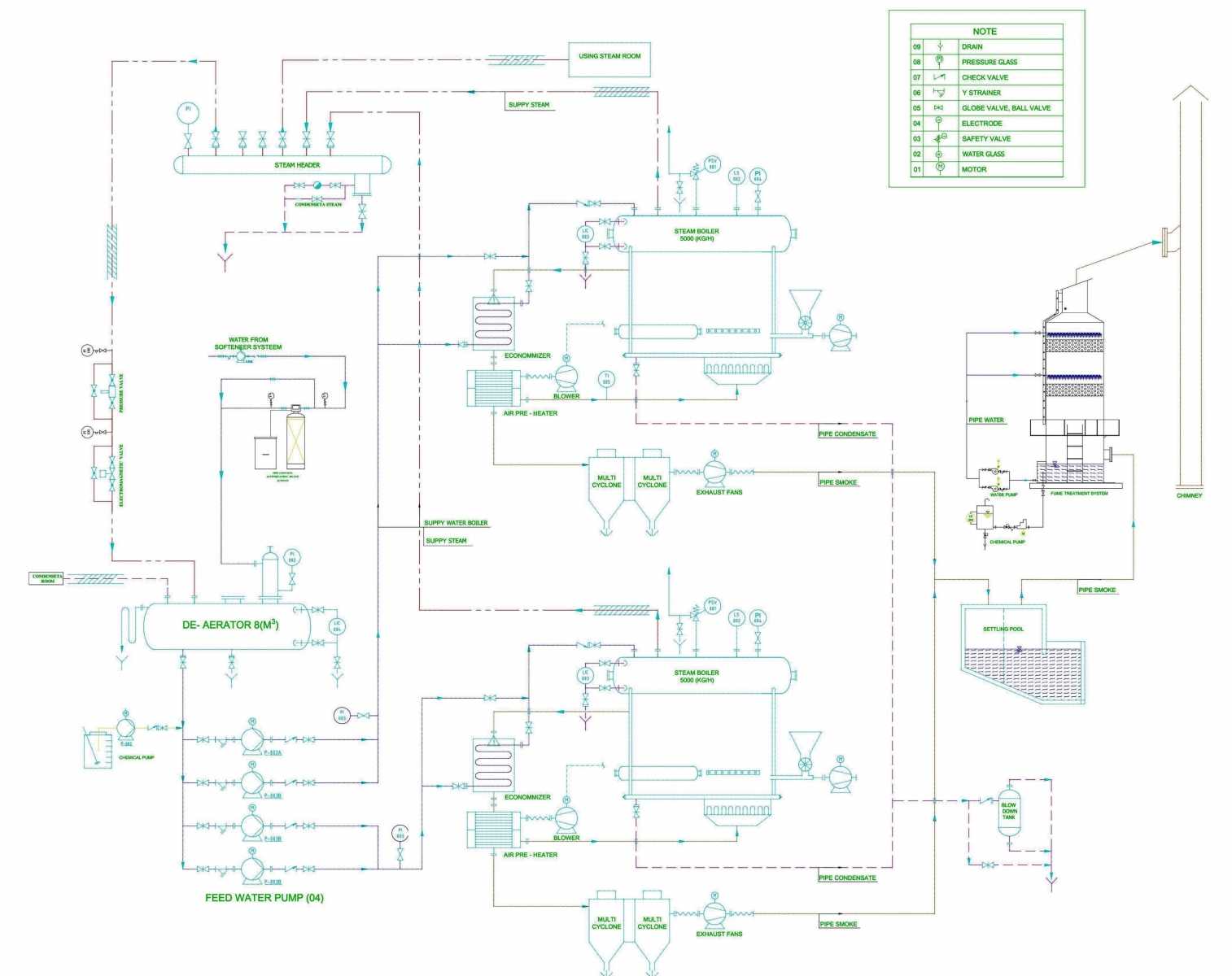
Sơ đồ PID.

  •  Chế độ hoạt động

Cấp nước tự động: Bơm nước vào lò trong khoảng quy định, khi mức nước xuống
tới mức nguy hiểm cấp 1 lò sẽ ngừng đốt, ngừng chạy tất cả các quạt, khi tới vạch nguy hiểm cấp 2 lò sẽ báo hiệu bằng tín hịêu đèn sau đó tới còi. Sau đó sẽ cúp nguồn điện của các quạt hoàn toàn, nhưng đèn và còi vẫn phải báo hiệu

Tự động áp suất: Do hệ thống điều khiển (PLC) theo phụ tải do vậy chế độ đốt lúc nhanh lúc chậm, tùy theo nhu cầu sử dụng của nhà máy, khi đủ áp suất. Ngoài ra còn lắp van an toàn theo quy phạm an toàn để xả hơi ra ngoài khi áp suất vượt quá giới hạn cho phép
Cấp than, trang than và thải xỉ than bằng phương pháp tự động qua các cửa cho than và cào xỉ. Ngoài ra còn các vị trí trong lò được lắp các cảm biến nhiệt được bố trí vào các vị trí, như buồng đốt nhiệt độ khói lò, nhiệt độ nước cấp, giúp cho người vận hành một cách dễ dàng, dễ nhận biết các sự cố thông qua hệ thống màn hình PLC, hoặc màn hình máy tính. Van xả đáy cũng được điều khiển qua hệ thống điều khiển trung tâm, có chức năng cài đặt xả tự động theo ý muốn, giúp cho hệ thống chạy ổn định và làm giảm thiểu cáu cặn, nồi hơi sẽ được bền hơn và tiết kiệm nhiên liệu

Khử khí để làm gì?

Các loại khí hòa tan thường có trong nước gây ra nhiều vấn đề để ăn mòn. Như oxy trong nước tạo ra các vết rỗ đặc biệt nghiêm trọng do tính chất bản địa hóa của nó. Sự ăn mòn cacbon dioxide thường gặp phải trong các hệ thống ngưng tụ và ít phổ biến hơn trong các hệ thống phân phối nước. Nước có chứa amoniac đặc biệt trong sự hiện diện của oxy dễ dàng tấn công các hợp kim và đồng. Kết quả của sự ăn mòn dẫn đến cặn bám trên bề mặt truyền nhiệt nồi hơi và làm giảm hiệu quả của nồi hơi và gây thủng ống.

  • Thực tế là bình khử khí chỉ cần gia nhiệt nước cấp đến nhiệt độ gần đến nhiệt độ bão hòa ở áp suất làm việc của bình khử khí (nghĩa là gia nhiệt đến gần sôi). Ở nhiệt độ này thì các khí không ngưng đã tách khỏi nước cấp. Hỗn hợp hơi và khí không ngưng bốc lên sẽ gặp nước cấp đi xuống, như vậy lượng nước bốc lên sẽ ngưng tụ và được thu hồi lại và nước sẽ được chảy xuống bình chứa nước mềm
    Để đáp ứng các tiêu chuẩn về an toàn trong nồi hơi và loại bỏ hàm lượng oxy, chúng tôi có trang bị thêm thiết bị khử khí

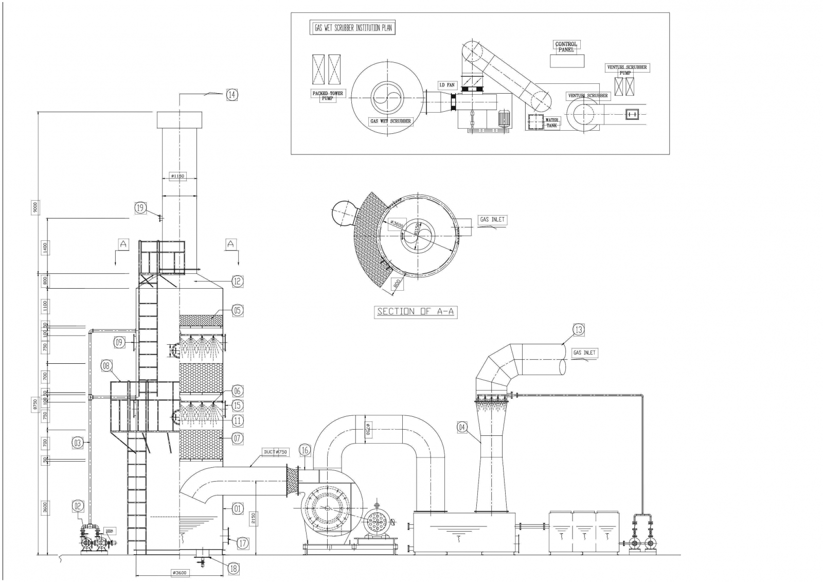
* KHÍ THẢI CHO NỒI HƠI

  • Để đảm cho nồi hơi đốt đa nhiên liệu được đạt tiêu chuẩn môi trường việt nam cho phép, thì nồi hơi sau khi nhiên liệu được đưa vào buồng đốt, quá trình kiểm soát chu trình cháy được diễn ra tại đây, do vậy sẽ triệt tiêu được CO ở khâu này, tuy nhiên do nhiên liệu nhiều loại khác nhau nên việc các bụi nhỏ sẽ theo đường quạt gió phát tán ra bên ngoài, việc xử lý các bụi nặng thì có hệ Cyclo sẽ thu các bụi nặng, dưới được gắn Rotaly để đảm bảo rằng toàn bộ bụi khi rơi xuống đã được đưa ra ngoài khu vực thu gôn, tránh việc gió quẩn bụi lại, còn bụi lơ lửng sẽ được đi qua hệ màng nước với lượng nước tuần hoàn rất lớn nên việc xử lý bụi nhỏ được xử lý một cách triệt để
  • - Khí thải của nồi hơi bảo đảm nồng độ khí thải :
  • Cột B – QCVN 19 :2009 BTNMT(Tiêu chuẩn mới của Việt Nam)
  • Ensure flue gas concentrations in : Column B QCVN 19:2009BTNMT (New Standard Of Vietnam)

(Tiêu chuẩn mới của Việt Nam)

Báo giá


Để lại thông tin để nhận báo giá cho sản phẩm