Lò khí hóa than

Lò khí hóa than

GIỚI THIỆU LÒ THAN KHÍ HÓA

Lò than khí hóa  (Gasification furnace) Khí hóa than thực chất là quá trình dùng chất khí hóa (hơi nước và không khí)phản ứng với than ở nhiệt độ cao, chuyển nhiên liệu từ dạng rắn sang dạng khí. Sản phẩm thu được gọi là khí than với thành phần cháy chủ yếu là: H2, CO, CH4

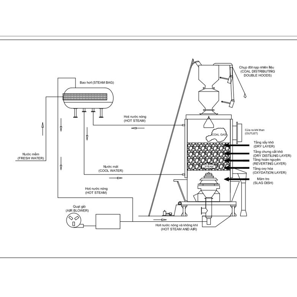
Trong công nghiệp. Lò than khí hóa là lò biến nhiên liệu than thành nhiên liệu khí. Đó là một lò trụ đứng,phía trên có bộ phận nạp than vào lò, phía dưới có bể chứa tro xỉ.Trong lò: than được đưa từ trên xuống dưới, tác nhân khí hóa là hơi nước và không khí được đưa từ dưới lên trên tạo thành chuyển động luồng ngược chiều, giữa chúng sinh ra các phản ứng hóa học và quá trình trao đổi nhiệt lượng. Theo chiều chuyển động của tác nhân khí hóa, trong lò hình thành 6 tầng sinh khí: tầng tro xỉ, tầng oxy hóa (tầng lửa), tầng hoàn nguyên chính và phụ, tầng chưng cất khô, tầng không (tầng trống rỗng). Khí than thu được sau các tầng sinh khí theo đường ống đưa đến các mỏ đốt để đốt cấp nhiệt cho lò nung. Hiệu suất cháy cao và điều chỉnh nhiệt dễ dàng với dung sai đạt không quá ±50C
 Khi cháy tỏa nhiệt sạch nên khí than trở thành một loại nhiên liệu quan trọng và được ứng dụng rộng rãi trong các ngành công nghiệp hiện nay.

Gasification furnace Lò than khí hóa () là một phẩn trong sản phẩm mà MIMICO cung cấp.

Thông số kỹ thuật nhiệt trị của khí than, Gas, Dầu.

Thông số nhiên liệu

Khí than

Gas

Dầu FO

Dầu DO

Nhiệt độ lớn nhất

13500C

18200C

18200C

18200C

Nhiệt trị

1250 kcal/m3

1250 kcal/kg

9500 kcal/kg

10.000 kcal/kg

Điều chỉnh nhiệt độ

± 50C

± 50C

± 100C

± 100C

Độ sạch

98%

98%

75%

82%

- Tự động hóa dễ dàng
- Dễ dàng điều khiển nhiệt độ theo ý muốn

- Hoạt động ổn định, đảm bảo chất lượng sản phẩm

- Không gây bụi và ô nhiễm như phương pháp đốt than truyền thống

- Dễ sử dụng, ít bảo dưỡng sửa chữa

- Tiết kiệm lên đến 50-70% so với phương pháp dùng Gas và 40-50% so với dùng dầu

- Chủ động nguồn nguyên liệu trong nước

3. Ưu điểm của lò khí hóa than

Ngành công nghiệp sản xuất hóa chất và nhiều ngành sản xuất khác

- Ngành công nghiệp luyện kim, cơ khí: cấp nhiệt cho các quá trình thi công nhiệt luyện như nung kim loại, tôi, ủ, ram chi tiết máy..

- Ngành công nghiệp hóa chất: trong các quá trình sấy, nung, thu nhiệt trong các nhà máy sản xuất bột giặt, phân hóa học…

- Ngành công nghiệp sản xuất gốm, sứ, gạch Ceramic, gạch chịu lửa…

- Ngành công nghiệp sản xuất thép, nấu nhôm, nấu đồng, xử lý phế thải,

2. Phạm vi ứng dụng của lò khí hóa than

Khí than thu được sau các tầng sinh khí theo đường ống đưa đến các mỏ đốt để đốt cấp nhiệt cho lò nung. Ta có thể điều chỉnh hiệu suất cháy và lượng nhiệt dễ dàng với dung sai đạt không quá ±5,0 oC. Khi cháy tỏa nhiệt sạch nên khí than trở thành một loại nhiên liệu quan trọng và được ứng dụng rộng rãi trong các ngành công nghiệp hiện nay.

Trong lò, than được đưa từ trên xuống dưới, tác nhân khí hóa là hơi nước và không khí được đưa từ dưới lên trên tạo thành chuyển động luồng ngược chiều. Giữa chúng sinh ra các phản ứng hóa học và quá trình trao đổi nhiệt lượng. Theo chiều chuyển động của tác nhân khí hóa, trong lò hình thành 6 tầng sinh khí: tầng tro xỉ, tầng oxy hóa (tầng lửa), tầng hoàn nguyên chính và phụ, tầng chưng cất khô, tầng không (tầng trống rỗng).

                 Nguyên lý lò than khí hóa.

Chất khí hóa (hơi nước và không khí) sẽ tiếp xúc và phản ứng với than sau đó chuyển nhiên liệu từ dạng rắn (than) sang dạng khí. Sản phẩm thu được gọi là khí than với thành phần cháy chủ yếu là: H2, CO, CH4…dùng làm nhiên liệu trong dân dụng, trong công nghiệp.

1. Nguyên lý hoạt động

                                                 

Lò khí hóa than (Gasification furnace) là lò biến nhiên liệu than thành nhiên liệu khí. Lò có dạng hình trụ đứng, phía trên có bộ phận nạp than vào lò, phía dưới có bể chứa tro xỉ. Lò hoạt động dựa trên phản ứng giữa khí và than ở nhiệt độ cao.

GIỚI THIỆU LÒ THAN KHÍ HÓA

Báo giá


Để lại thông tin để nhận báo giá cho sản phẩm